




房屋(住宅)建筑设计是一个什么概念……
通俗地讲:什么是主卧?主卧都需要具备哪些基本的功能性要求?
只有在明白了主卧基本的功能性要求之后,那么主卧所必需的、基本的、最小的使用面积也就出来了;
有了最小的使用面积之后,再根据南、北不同地域及人们的生活习惯等,就可以大致规划设计出其最佳、最实用的长宽比例尺寸了……
以此类推:厨房、餐厅、客厅等等都需要具备哪些基本的功能性要求,以及最佳、最小的使用面积和长宽比例尺寸……
故,房屋(住宅)建筑就是以此为依据进行建设的。
而现实版的“房屋(住宅)建筑设计”情况又是怎样的呢……
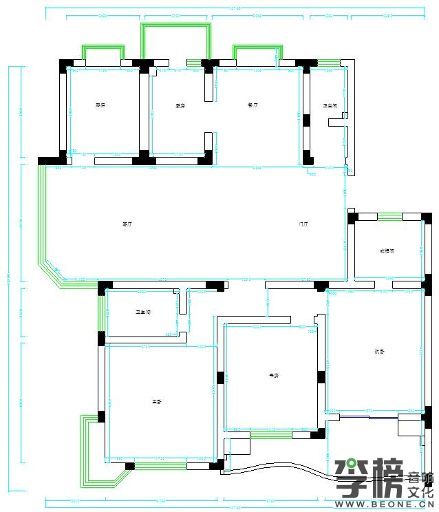
某业主的客厅与餐厅是一个通间,使用面积非常大;
但问题来了:
1、先是找不到合适的 A 立面,即挂电视机的墙面,作为普通的民宅客厅这可是基本的功能性需求之一,属于“刚需”啊!
2、最后 A 立面确定下来了,但如果以三人沙发与 A 立面墙的距离(近 7 米)而言,即使挂上一个 120 英寸的投影幕观看电视节目也不会觉得“大”的;试想:那些普通 80 英寸以下的液晶电视机又怎能应对这一生活当中的“刚需”问题呢……
厨房也存在同样的问题:
1、与雄伟庞大的客厅、餐厅相比,厨房的使用面积则是非常得窄小;
2、稍微发福、肚子大点的业主们(包括孕妇),要想在厨房做饭或进出,基本上都是要“提气吸肚”的,不然就会耍不开的;
想想每天面对着厨房都是要“提气吸肚”的生活规律,那会是啥“鸡味”呢……
此上、下图片所示为常州市的一处高档住宅小区……
本案例“设计点析”的重点是在这两张 CAD 平面图纸上!正所谓:通者自通、懵者更懵……
由于前期“房屋(住宅)建筑设计”的不太到位,那只有通过后期对房屋的“规划切割”来进行整改了……
对房屋进行”规划切割“的主要目的,就是让房屋的空间利用率最大化、合理化、人性化!与此同时,也让房屋做的更合乎“风水”要求、更“吉利”如意一些……
只有在“规划切割”合理、到位的前提下,接下来的室内设计与施工装修才会显得更加有意义!
房屋从签单、设计、修改、确定、装修、选购……都是按照既定程序走的,房主人胡老总与胡老夫人均非常配合!
设计方案一旦确定之后直到装修竣工的整个过程期间,胡老夫人基本上没有再指点过“江山”,一切均是按设计图纸走的……
正所谓:家宁-国安!难怪乎胡老总的生意事业会做得风声水起,蒸蒸日上的……
文/摄影/李鹏展/李榜xz 2017-11-30
















豫公网安备41041102000145号